
Y様邸リノベーション
マンションの和室を茶道ができるようにリフォームしました。
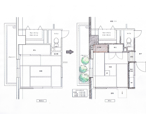
茶道は、道具を置く位置や足の運びが畳の目を目安にしています。通常、マンションの和室の場合畳のサイズがかなり小さいんですよね。そこで、和室6帖あったところを4畳半にし、炉を設置するために床を20cmほどあげました。炉を置くところ以外は床下収納ができるようなっています。余ったスペースには置き水屋が設置できるように物入を設けました。その他、畳の目の方向や釘の位置など流派によっても違いがあることなどこの物件を通してかなり勉強になりました。

プラン

6帖から4畳半にリノベーション。畳のサイズを大きくしました。

炉を仕込むために床の高さを上げました。

障子の向こうは、バルコニー。雪見障子を設置。

稽古の雰囲気が感じれます。

客は、廊下からにじり口にて。

炉以外の部分は床下収納。



前のページへ


