
A団地リノベーション
今回は、団地の一室の改装です。あらためて、この時代の作り方を見ると、とてもゆとりのある建て方をしているんですよね。住棟の間隔だったり、敷地に公園や公民館などのスペースがあったり。現在では、こんな贅沢考えられないですよね。この貴重な資産を有効に使えるように心配りしました。

Before

After

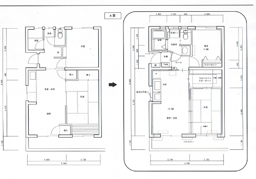
プラン

※Before バランス釜のおふろ

※Before 外壁面に断熱材が設置されていませんでした。

※After ユニットバスに変更
このころの団地のお風呂は、バランス釜でした。追い炊きができたり、今考えるとエコな装置だと思うのですが、部屋内にあるガスに、若い人が恐怖を感じるらしく、入居される人から敬遠されるそうです。今回は、現状の広さに合わせたユニットバスに変更することにしました。給湯リモコンも設置しました。

※工事中 給水管は新しいものと取替え

※工事中 壁をふかし断熱材を施工していきます。

※After

※After

※After

※After

![]()


5階建ての建物で改装するお部屋が4階でした。階段しかありませんでしたので、資材の搬入がとても大変だったそうです。そこで、考えられたのがこのリフト。仮設の足場を設置し、階段で運べないようなものを注意しながら搬入していきます。



前のページへ


